1402 Jamison Avenue Ottawa, Ontario K1E 1J5
$625,000
Welcome to this well-located bungalow in the heart of Orléans, offering comfort, functionality, and a fantastic location. This 3-bedroom home features a bright, inviting kitchen with plenty of natural light and hardwood flooring throughout the main level. The primary bedroom includes its own ensuite, while a full 4-piece bathroom completes the main floor. Enjoy added warmth and charm with two gas fireplaces. The fully finished basement boasts a large family room, perfect for a variety of uses-whether a rec room, home office, or additional living space. Step outside to a beautifully landscaped, private backyard, ideal for relaxing or entertaining. Conveniently located close to parks, schools, recreation, and all amenities, this home is perfect for families, downsizers, or first-time buyers alike. (id:65396)
Property Details
| MLS® Number | X13028724 |
| Property Type | Single Family |
| Neigbourhood | Queenswood Heights |
| Community Name | 1102 - Bilberry Creek/Queenswood Heights |
| Parking Space Total | 3 |
Building
| Bathroom Total | 3 |
| Bedrooms Above Ground | 3 |
| Bedrooms Total | 3 |
| Age | 51 To 99 Years |
| Amenities | Fireplace(s) |
| Appliances | Dishwasher, Water Heater |
| Architectural Style | Bungalow |
| Basement Development | Finished |
| Basement Type | N/a (finished) |
| Construction Style Attachment | Detached |
| Cooling Type | Central Air Conditioning |
| Exterior Finish | Aluminum Siding, Brick |
| Fireplace Present | Yes |
| Fireplace Total | 2 |
| Foundation Type | Concrete |
| Half Bath Total | 1 |
| Heating Fuel | Natural Gas |
| Heating Type | Forced Air |
| Stories Total | 1 |
| Size Interior | 1,100 - 1,500 Sqft |
| Type | House |
| Utility Water | Municipal Water |
Parking
| Carport | |
| Garage |
Land
| Acreage | No |
| Sewer | Sanitary Sewer |
| Size Depth | 96 Ft |
| Size Frontage | 50 Ft |
| Size Irregular | 50 X 96 Ft |
| Size Total Text | 50 X 96 Ft |
Rooms
| Level | Type | Length | Width | Dimensions |
|---|---|---|---|---|
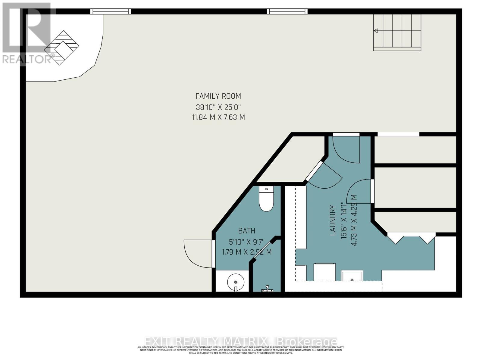
| Basement | Family Room | 11.84 m | 7.63 m | 11.84 m x 7.63 m |
| Basement | Laundry Room | 4.73 m | 4.29 m | 4.73 m x 4.29 m |
| Basement | Bathroom | 1.79 m | 2.92 m | 1.79 m x 2.92 m |
| Main Level | Foyer | 1.04 m | 1.43 m | 1.04 m x 1.43 m |
| Main Level | Living Room | 4.99 m | 3.36 m | 4.99 m x 3.36 m |
| Main Level | Dining Room | 2.28 m | 3.16 m | 2.28 m x 3.16 m |
| Main Level | Kitchen | 3.74 m | 4.17 m | 3.74 m x 4.17 m |
| Main Level | Primary Bedroom | 3.34 m | 3.77 m | 3.34 m x 3.77 m |
| Main Level | Bedroom 2 | 2.74 m | 2.9 m | 2.74 m x 2.9 m |
| Main Level | Bedroom 3 | 2.74 m | 2.9 m | 2.74 m x 2.9 m |
| Main Level | Bathroom | 2.18 m | 1.88 m | 2.18 m x 1.88 m |
| Main Level | Bathroom | 1.5 m | 1.43 m | 1.5 m x 1.43 m |
Contact Us
Contact us for more information

















