95 Castlebeau Street Russell, Ontario K0A 1W0
$624,900
**OPEN HOUSE Sun Ap 19, 11am-1pm** Welcome to this well-maintained and move-in ready home in the heart of Embrun, offering a great balance of space, functionality, and thoughtful updates throughout. From the moment you arrive, you're welcomed by a spacious foyer that leads into a bright and inviting main level, enhanced by newly added pot lights that create a warm and comfortable atmosphere. The living room is filled with natural light and flows into the dining area, where patio doors lead directly to your backyard-perfect for easy indoor-outdoor living. The kitchen is practical and well laid out, offering ample cabinetry, a center island, new appliances, and a natural gas line for a gas stove. Upstairs, you'll find a beautifully updated main bathroom along with generously sized bedrooms, including a primary retreat with a walk-in closet and convenient access to the bathroom. The fully finished lower level adds valuable living space with a large rec room featuring a cozy WETT-certified wood-burning fireplace, along with an additional bedroom-ideal for guests, a home office, or growing families. Step outside to enjoy your fully fenced backyard oasis, complete with a spacious deck, natural gas BBQ hookup, and an above-ground pool with a new filter (2024)-perfect for summer entertaining. Ideally located close to parks, schools, and amenities, this home offers comfort, functionality, and great value in a family-friendly neighbourhood. (id:65396)
Open House
This property has open houses!
11:00 am
Ends at:1:00 pm
Property Details
| MLS® Number | X13013352 |
| Property Type | Single Family |
| Community Name | 602 - Embrun |
| Amenities Near By | Schools |
| Community Features | School Bus, Community Centre |
| Equipment Type | Water Heater |
| Features | Carpet Free |
| Parking Space Total | 6 |
| Pool Type | Above Ground Pool |
| Rental Equipment Type | Water Heater |
Building
| Bathroom Total | 2 |
| Bedrooms Above Ground | 3 |
| Bedrooms Below Ground | 1 |
| Bedrooms Total | 4 |
| Amenities | Fireplace(s) |
| Appliances | Central Vacuum, Dishwasher, Dryer, Washer, Refrigerator |
| Basement Development | Finished |
| Basement Type | N/a (finished) |
| Construction Style Attachment | Detached |
| Cooling Type | Central Air Conditioning, Air Exchanger |
| Exterior Finish | Brick |
| Fireplace Present | Yes |
| Fireplace Total | 1 |
| Foundation Type | Concrete |
| Half Bath Total | 2 |
| Heating Fuel | Natural Gas |
| Heating Type | Forced Air |
| Stories Total | 2 |
| Size Interior | 1,100 - 1,500 Sqft |
| Type | House |
| Utility Water | Municipal Water |
Parking
| Attached Garage | |
| Garage |
Land
| Acreage | No |
| Land Amenities | Schools |
| Sewer | Sanitary Sewer |
| Size Depth | 134 Ft ,6 In |
| Size Frontage | 88 Ft ,7 In |
| Size Irregular | 88.6 X 134.5 Ft |
| Size Total Text | 88.6 X 134.5 Ft |
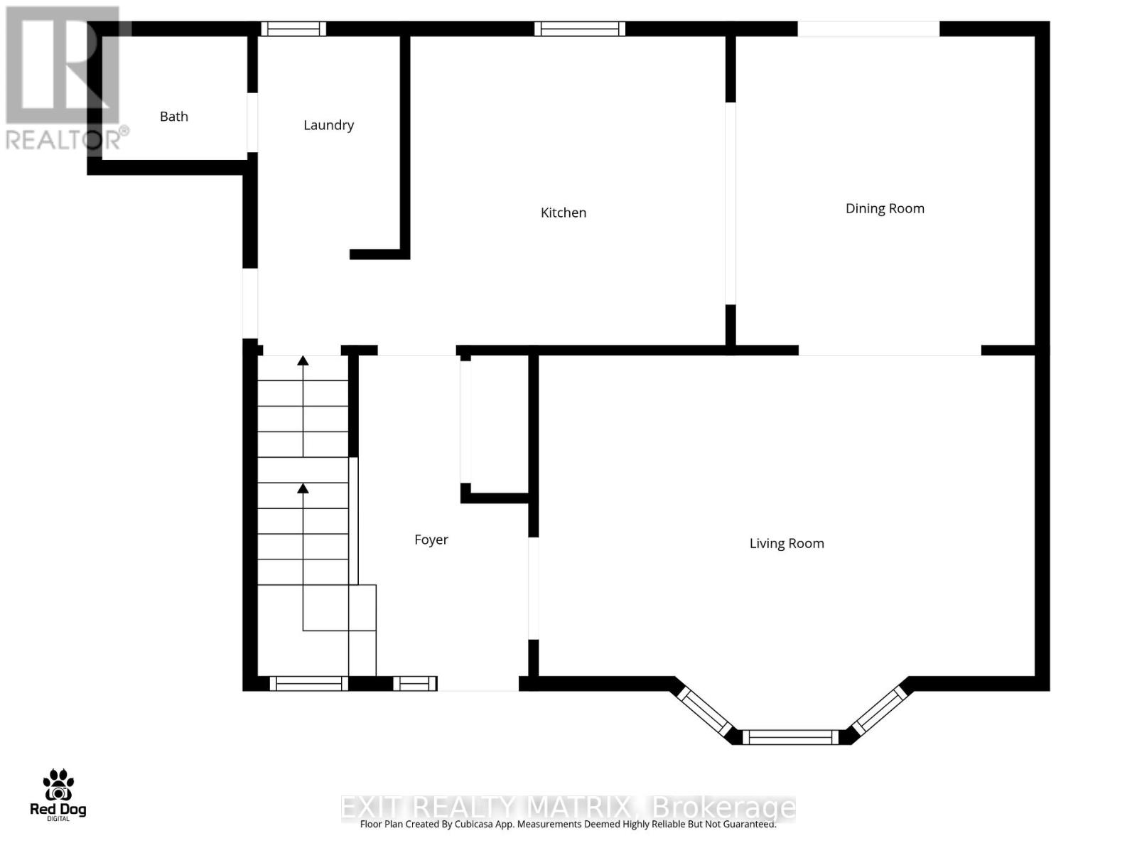
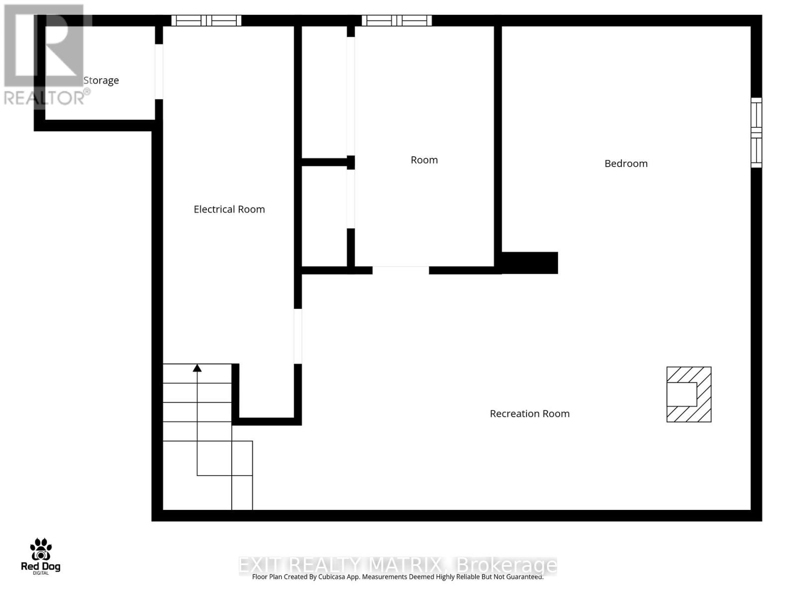
Rooms
| Level | Type | Length | Width | Dimensions |
|---|---|---|---|---|
| Second Level | Bedroom | 4.08 m | 3.17 m | 4.08 m x 3.17 m |
| Second Level | Primary Bedroom | 5.25 m | 3.45 m | 5.25 m x 3.45 m |
| Second Level | Other | 2.46 m | 1.49 m | 2.46 m x 1.49 m |
| Second Level | Bathroom | 2.46 m | 1.6 m | 2.46 m x 1.6 m |
| Second Level | Bedroom | 5.23 m | 4.08 m | 5.23 m x 4.08 m |
| Lower Level | Recreational, Games Room | 7.23 m | 6.52 m | 7.23 m x 6.52 m |
| Lower Level | Bedroom | 3.12 m | 2.03 m | 3.12 m x 2.03 m |
| Lower Level | Utility Room | 5.25 m | 2.28 m | 5.25 m x 2.28 m |
| Main Level | Foyer | 3.53 m | 2.13 m | 3.53 m x 2.13 m |
| Main Level | Living Room | 5.18 m | 4.11 m | 5.18 m x 4.11 m |
| Main Level | Dining Room | 3.32 m | 3.27 m | 3.32 m x 3.27 m |
| Main Level | Kitchen | 3.53 m | 3.32 m | 3.53 m x 3.32 m |
| Main Level | Laundry Room | 3.32 m | 1.75 m | 3.32 m x 1.75 m |
| Main Level | Bathroom | 1.62 m | 1.47 m | 1.62 m x 1.47 m |
Contact Us
Contact us for more information

















































